Presentation Board
Presentation Board
Revit- Final 3D Rear Exterior Plan
Revit- Final 3D Rear Exterior Plan
Revit- Progress View Exterior (Front)
Revit- Progress View Exterior (Front)
Revit- Progress View Exterior (Back)
Revit- Progress View Exterior (Back)
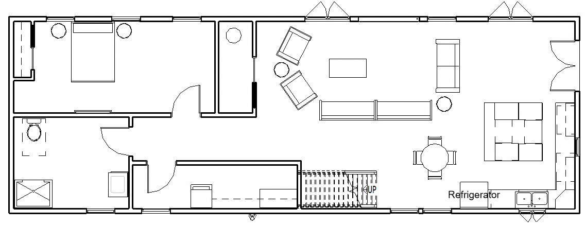
Revit- 1st Floor Floor Plan
Revit- 1st Floor Floor Plan
Revit- 2nd Floor Floor Plan
Revit- 2nd Floor Floor Plan
Room Finish Schedule
Room Finish Schedule
Revit- Living Room
Revit- Living Room
Revit- 1st Floor Bedroom
Revit- 1st Floor Bedroom
Revit- 1st Floor Bathroom
Revit- 1st Floor Bathroom
Revit- Kitchen and Dining Room
Revit- Kitchen and Dining Room

You may also like

Back to Top